一、金屬梁柱式護欄及橋梁波形護欄板
(1)當橋梁設置丑護欄安全帶或護欄安全帶的高度D小于10cm,且沒有超出護欄面時,各防摘等級的橋梁護欄構造要求如圖2一83所示.當護欄安全帶伸出護欄面的距離大于或等于25cin,且護欄安全帶高度D=10cm,則橋梁護欄高度H應在圖2一75的基礎上增加D,
(2)高速公路、一級公路的橋梁不宜設且護欄安全帶,否則,其高度宜控制在510cm之間,護欄面宜與護欄安全帶邊緣線成一直線.
(3)護欄的最小高度應滿足圖2一76的要求.在圖中陰影區設且橫梁時,應避免失控車輛的乘員頭部直接搜擊護欄,
(4)立柱何距應符合表2-23的規定。

二、鋼筋混凝土梁柱式護欄
B、 A, Am防掩等級的橋梁護欄可以采用鋼筋混凝土梁柱式護欄.梁柱式護欄的構造要求如圖2一77所示。護欄參數如表2一24所示.


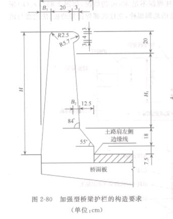
三、鋼筋混凝土墻式護欄
鋼筋混凝土墻式護欄按構造可分為F型、單坡型、加強型三種.構造要求如圖2一78-圖2一80及表2一25--表2一27所示。

圖2-77鋼筋混凝土梁柱式護欄
四、組合式橋梁護欄
組合式護欄的構造如圖2-81和表2一28所示.在設置該護欄時,不得隨意改變組合式護欄中棍凝土護欄迎撞面的截面形狀,但其背面可根據實際摘況采用合適的形狀。很凝土護欄迎搜面的鋼筋保護層厚度不得小于4.0cm.





